westend 1
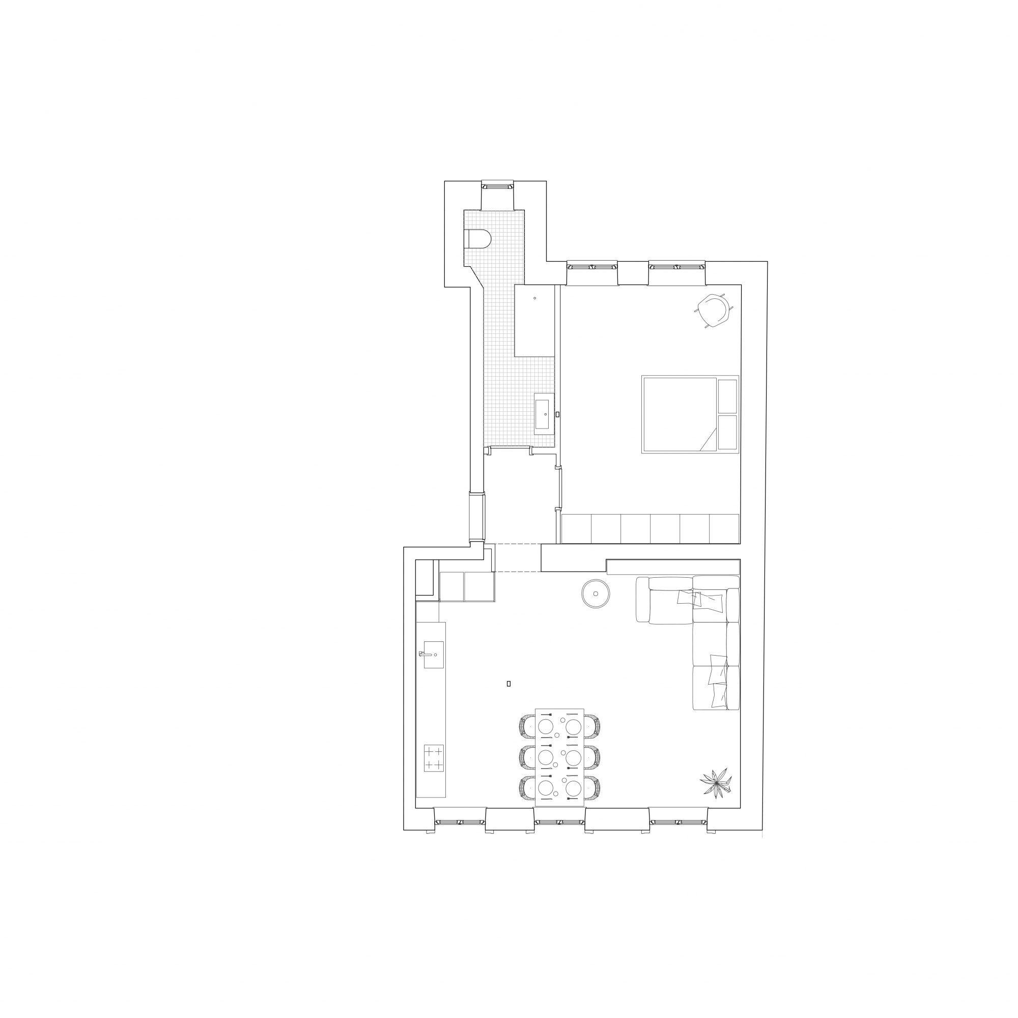
Das Gebäude von 1885 wurde in den 80er Jahren des letzten Jahrhunderts umgebaut und erhielt eine neue Grundrissaufteilung. Teile dieser neuen Aufteilung wurden entfernt und das kleinteilige Wohnen und Kochen zugunsten eines großzügigen Wohn-, Ess- und Kochbereichs aufgegeben. Zahlreiche Bodenaufbauten konnten entfernt und die originalen Dielen freigelegt, aufgearbeitet und wieder eingebaut werden. Neben den weißen Wänden und den Weichholzdielen bestimmt insbesondere die schwarze Küche den Raumeindruck.










